KOWOBE Wohnungsangebote

Herzlich Willkommen!

Wir, der KOWOBE Fürstenberg/Havel, vermieten Wohnungen in Fürstenberg/Havel, Bredereiche, Steinförde, Himmelpfort, Blumenow, Tornow sowie Neuglobsow. Hier finden Sie einige unserer aktuell verfügbaren Angebote.

Sollten Sie Interesse haben, eine der aufgelisteten Wohnungen anzumieten oder auf Wohnungssuche mit uns zu gehen, dann nehmen Sie gern Kontakt mit uns auf - telefonisch, auf dem Postweg oder per E-Mail.
Dazu finden Sie unter "Mieterservice & Informationen" alle erforderlichen Bewerbungsunterlagen. Dabei ist der Wohnungsbewerbungsbogen natürlich das wichtigste Element. 

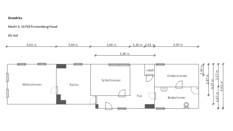
Barrierefreie 2-Raum-Wohnung mit Terrasse - Erstbezug

63,59 m²
Souterrain
Gesamtmiete: 922,00 Euro
Zu vermieten ab: voraussichtlich ab 01.03.2026

Objektstandort
Friedrich-Wilhelm-Straße 4
16798 Fürstenberg/Havel

Das Wohnhaus in der Friedrich-Wilhelm-Straße 4, 16798 Fürstenberg/Havel, ist ein kleines Mehrfamilienhaus im Stadtzentrum mit einem kleinen, gemütlichen Innenhof. Es ist mit einem Fahrstuhl ausgestattet. 
Innerhalb von 5 Minuten erreichen Sie zu Fuß diverse Supermärkte, Bäcker und Cafés, Apotheken, das Rathaus, die Sparkasse etc. Innerhalb von 10 Minuten erreichen Sie zu Fuß den Bahnhof. 

Fürstenberg/Havel ist eine Wasserstadt umgeben von drei Seen. Hier finden Sie diverse Einkaufsläden, Cafés, Badestellen, Bootsverleihe, Spielplätze und vieles mehr. Auf dem Weg in die Innenstadt erwartet Sie unser Stadtpark, wo im Sommer bspw. das städtische Wasserfest stattfindet sowie das Schloss Fürstenberg aus dem 18. Jahrhundert. 
Kindergärten und die Grundschule erreichen Sie innerhalb von 5 Minuten mit dem Auto. Optional bietet Fürstenberg/Havel auch einen Kindergarten und eine Grundschule im Ortsteil Bredereiche. 

Die 2-Raum-Wohnung liegt im Souterrain des Wohnhauses.
Die Wohnung umfasst 63,59 m² Wohn- und Nutzfläche. Sie ist unterteilt in einen Flur, ein Badezimmer, eine offene Küche, ein Wohnzimmer, ein Schlafzimmer, ein Abstellraum sowie eine Terrasse.
Das Badezimmer ist ausgestattet mit Waschbecken, WC und Dusche. Man kann es vom Flur aus betreten. 
In der gesamten Wohnung sind die Türen verbreitert. Ein PKW-Stellplatz gehört zur Wohnung.
Die monatliche Warmmiete in Höhe von 922,00 € setzt sich aus einer Kaltmiete in Höhe von 667,70 €, einer Betriebskostenvorauszahlung in Höhe von 127,15 € sowie einer Heizkostenvorauszahlung in Höhe von 127,15 € zusammen.
Die Wohnung ist an die Zentralgasheizung angeschlossen. 
Aus der Kaltmiete in Höhe von 667,70 € ergibt sich eine Kaution, drei Monatskaltmieten, in Höhe von 2.003,10 €. Die Zahlung der Kaution in drei Raten ist möglich. 

Sollten Sie Interesse an einer Besichtigung der o.g. Wohnung haben, sprechen Sie bitte telefonisch einen Besichtigungstermin mit einer unserer Mitarbeiterinnen ab.
Die notwendigen Bewerbungsunterlagen finden Sie auf unserer Website unter "Mieterservice". Bitte beachten Sie, dass diese Unterlagen vor oder zum Besichtigungstermin mitzubringen sind. 


Barrierefreie 2-Raum-Wohnung mit Balkon - Erstbezug

59,73 m²
Erdgeschoss
Gesamtmiete: 896,00 Euro
Zu vermieten ab: voraussichtlich ab 01.03.2026

Objektstandort
Friedrich-Wilhelm-Straße 4
16798 Fürstenberg/Havel

Das Wohnhaus in der Friedrich-Wilhelm-Straße 4, 16798 Fürstenberg/Havel, ist ein kleines Mehrfamilienhaus im Stadtzentrum mit einem kleinen, gemütlichen Innenhof. Es ist mit einem Fahrstuhl ausgestattet.  
Innerhalb von 5 Minuten erreichen Sie zu Fuß diverse Supermärkte, Bäcker und Cafés, Apotheken, das Rathaus, die Sparkasse etc. Innerhalb von 10 Minuten erreichen Sie zu Fuß den Bahnhof. 

Fürstenberg/Havel ist eine Wasserstadt umgeben von drei Seen. Hier finden Sie diverse Einkaufsläden, Cafés, Badestellen, Bootsverleihe, Spielplätze und vieles mehr. Auf dem Weg in die Innenstadt erwartet Sie unser Stadtpark, wo im Sommer bspw. das städtische Wasserfest stattfindet sowie das Schloss Fürstenberg aus dem 18. Jahrhundert. 
Kindergärten und die Grundschule erreichen Sie innerhalb von 5 Minuten mit dem Auto. Optional bietet Fürstenberg/Havel auch einen Kindergarten und eine Grundschule im Ortsteil Bredereiche. 

Die 2-Raum-Wohnung liegt im Erdgeschoss des Wohnhauses.
Die Wohnung umfasst 59,73 m² Wohn- und Nutzfläche. Sie ist unterteilt in einen Flur, ein Badezimmer, eine Küche, ein Wohnzimmer, ein Schlafzimmer, ein Abstellraum sowie einen Balkon.
Das Badezimmer ist ausgestattet mit Waschbecken, WC und Dusche. Man kann es vom Flur aus betreten.
In der gesamten Wohnung sind die Türen verbreitert. Ein PKW-Stellplatz sowie ein Keller gehören zur Wohnung.
Die monatliche Warmmiete in Höhe von 896,00 € setzt sich aus einer Kaltmiete in Höhe von 657,03 €, einer Betriebskostenvorauszahlung in Höhe von 119,48 € sowie einer Heizkostenvorauszahlung in Höhe von 119,49 € zusammen.
Die Wohnung ist an die Zentralgasheizung angeschlossen. 
Aus der Kaltmiete in Höhe von 657,03 € ergibt sich eine Kaution, drei Monatskaltmieten, in Höhe von 1.971,09 €. Die Zahlung der Kaution in drei Raten ist möglich. 

Sollten Sie Interesse an einer Besichtigung der o.g. Wohnung haben, sprechen Sie bitte telefonisch einen Besichtigungstermin mit einer unserer Mitarbeiterinnen ab.
Die notwendigen Bewerbungsunterlagen finden Sie auf unserer Website unter "Mieterservice". Bitte beachten Sie, dass diese Unterlagen vor oder zum Besichtigungstermin mitzubringen sind. 


Barrierefreie 2-Raum-Wohnung - Erstbezug

49,14 m²
Erdgeschoss
Gesamtmiete: 737,10 Euro
Zu vermieten ab: voraussichtlich ab 01.03.2026

Objektstandort
Friedrich-Wilhelm-Straße 4
16798 Fürstenberg/Havel

Das Wohnhaus in der Friedrich-Wilhelm-Straße 4, 16798 Fürstenberg/Havel, ist ein kleines Mehrfamilienhaus im Stadtzentrum mit einem kleinen, gemütlichen Innenhof. Es ist mit einem Fahrstuhl ausgestattet.  
Innerhalb von 5 Minuten erreichen Sie zu Fuß diverse Supermärkte, Bäcker und Cafés, Apotheken, das Rathaus, die Sparkasse etc. Innerhalb von 10 Minuten erreichen Sie zu Fuß den Bahnhof. 

Fürstenberg/Havel ist eine Wasserstadt umgeben von drei Seen. Hier finden Sie diverse Einkaufsläden, Cafés, Badestellen, Bootsverleihe, Spielplätze und vieles mehr. Auf dem Weg in die Innenstadt erwartet Sie unser Stadtpark, wo im Sommer bspw. das städtische Wasserfest stattfindet sowie das Schloss Fürstenberg aus dem 18. Jahrhundert. 
Kindergärten und die Grundschule erreichen Sie innerhalb von 5 Minuten mit dem Auto. Optional bietet Fürstenberg/Havel auch einen Kindergarten und eine Grundschule im Ortsteil Bredereiche. 

Die 2-Raum-Wohnung liegt im Erdgeschoss des Wohnhauses.
Die Wohnung umfasst 49,14 m² Wohn- und Nutzfläche. Sie ist unterteilt in einen Flur, ein Badezimmer, eine Wohnküche, ein Schlafzimmer und ein Abstellraum.
Das Badezimmer ist ausgestattet mit Waschbecken, WC und Dusche. Man kann es vom Flur aus betreten.
In der gesamten Wohnung sind die Türen verbreitert. Ein PKW-Stellplatz sowie ein Keller gehören zur Wohnung.
Die monatliche Warmmiete in Höhe von 737,10 € setzt sich aus einer Kaltmiete in Höhe von 540,54 €, einer Betriebskostenvorauszahlung in Höhe von 98,28 € sowie einer Heizkostenvorauszahlung in Höhe von 98,28 € zusammen.
Die Wohnung ist an die Zentralgasheizung angeschlossen. 
Aus der Kaltmiete in Höhe von 540,54 € ergibt sich eine Kaution, drei Monatskaltmieten, in Höhe von 1.621,62€. Die Zahlung der Kaution in drei Raten ist möglich. 

Sollten Sie Interesse an einer Besichtigung der o.g. Wohnung haben, sprechen Sie bitte telefonisch einen Besichtigungstermin mit einer unserer Mitarbeiterinnen ab.
Die notwendigen Bewerbungsunterlagen finden Sie auf unserer Website unter "Mieterservice". Bitte beachten Sie, dass diese Unterlagen vor oder zum Besichtigungstermin mitzubringen sind. 


Barrierefreie 3-Raum-Wohnung mit Terrasse - Erstbezug

88,75 m²
1. Obergeschoss
Gesamtmiete: 1.420,00 Euro
Zu vermieten ab: voraussichtlich ab 01.03.2026

Objektstandort
Friedrich-Wilhelm-Straße 4
16798 Fürstenberg/Havel

Das Wohnhaus in der Friedrich-Wilhelm-Straße 4, 16798 Fürstenberg/Havel, ist ein kleines Mehrfamilienhaus im Stadtzentrum mit einem kleinen, gemütlichen Innenhof. Es ist mit einem Fahrstuhl ausgestattet.   
Innerhalb von 5 Minuten erreichen Sie zu Fuß diverse Supermärkte, Bäcker und Cafés, Apotheken, das Rathaus, die Sparkasse etc. Innerhalb von 10 Minuten erreichen Sie zu Fuß den Bahnhof. 

Fürstenberg/Havel ist eine Wasserstadt umgeben von drei Seen. Hier finden Sie diverse Einkaufsläden, Cafés, Badestellen, Bootsverleihe, Spielplätze und vieles mehr. Auf dem Weg in die Innenstadt erwartet Sie unser Stadtpark, wo im Sommer bspw. das städtische Wasserfest stattfindet sowie das Schloss Fürstenberg aus dem 18. Jahrhundert. 
Kindergärten und die Grundschule erreichen Sie innerhalb von 5 Minuten mit dem Auto. Optional bietet Fürstenberg/Havel auch einen Kindergarten und eine Grundschule im Ortsteil Bredereiche. 

Die 3-Raum-Wohnung liegt im 1. Obergeschoss des Wohnhauses.
Die Wohnung umfasst 88,75 m² Wohn- und Nutzfläche. Sie ist unterteilt in einen Flur, ein Badezimmer, eine Küche, ein Wohnzimmer, zwei Schlafzimmer, ein Abstellraum sowie eine Terrasse.
Das Badezimmer ist ausgestattet mit Waschbecken, WC und Dusche. Man kann es vom Flur aus betreten.
In der gesamten Wohnung sind die Türen verbreitert. Ein PKW-Stellplatz sowie ein Keller gehören zur Wohnung.
Die monatliche Warmmiete in Höhe von 1.420,00 € setzt sich aus einer Kaltmiete in Höhe von 1.065,00 €, einer Betriebskostenvorauszahlung in Höhe von 177,50 € sowie einer Heizkostenvorauszahlung in Höhe von 177,50 € zusammen.
Die Wohnung ist an die Zentralgasheizung angeschlossen. 
Aus der Kaltmiete in Höhe von 1.065,00 € ergibt sich eine Kaution, drei Monatskaltmieten, in Höhe von 3.195,00 €. Die Zahlung der Kaution in drei Raten ist möglich. 

Sollten Sie Interesse an einer Besichtigung der o.g. Wohnung haben, sprechen Sie bitte telefonisch einen Besichtigungstermin mit einer unserer Mitarbeiterinnen ab.
Die notwendigen Bewerbungsunterlagen finden Sie auf unserer Website unter "Mieterservice". Bitte beachten Sie, dass diese Unterlagen vor oder zum Besichtigungstermin mitzubringen sind. 


Barrierefreie 3-Raum-Wohnung mit Balkon - Erstbezug

83,14 m²
2. Obergeschoss
Gesamtmiete: 1.372,00 Euro
Zu vermieten ab: voraussichtlich ab 01.03.2026

Objektstandort
Friedrich-Wilhelm-Straße 4
16798 Fürstenberg/Havel

Das Wohnhaus in der Friedrich-Wilhelm-Straße 4, 16798 Fürstenberg/Havel, ist ein kleines Mehrfamilienhaus im Stadtzentrum mit einem kleinen, gemütlichen Innenhof. Es ist mit einem Fahrstuhl ausgestattet.   
Innerhalb von 5 Minuten erreichen Sie zu Fuß diverse Supermärkte, Bäcker und Cafés, Apotheken, das Rathaus, die Sparkasse etc. Innerhalb von 10 Minuten erreichen Sie zu Fuß den Bahnhof. 

Fürstenberg/Havel ist eine Wasserstadt umgeben von drei Seen. Hier finden Sie diverse Einkaufsläden, Cafés, Badestellen, Bootsverleihe, Spielplätze und vieles mehr. Auf dem Weg in die Innenstadt erwartet Sie unser Stadtpark, wo im Sommer bspw. das städtische Wasserfest stattfindet sowie das Schloss Fürstenberg aus dem 18. Jahrhundert. 
Kindergärten und die Grundschule erreichen Sie innerhalb von 5 Minuten mit dem Auto. Optional bietet Fürstenberg/Havel auch einen Kindergarten und eine Grundschule im Ortsteil Bredereiche. 

Die 3-Raum-Wohnung liegt im 2. Obergeschoss des Wohnhauses.
Die Wohnung umfasst 83,14 m² Wohn- und Nutzfläche. Sie ist unterteilt in einen Flur, ein Badezimmer, eine Küche, ein Wohnzimmer, zwei Schlafzimmer, ein Abstellraum sowie einen Balkon.
Das Badezimmer ist ausgestattet mit Waschbecken, WC und Dusche. Man kann es vom Flur aus betreten.
In der gesamten Wohnung sind die Türen verbreitert. Ein PKW-Stellplatz sowie ein Keller gehören zur Wohnung.
Die monatliche Warmmiete in Höhe von 1.372,00 € setzt sich aus einer Kaltmiete in Höhe von 1.039,25 €, einer Betriebskostenvorauszahlung in Höhe von 166,37 € sowie einer Heizkostenvorauszahlung in Höhe von 166,38 € zusammen.
Die Wohnung ist an die Zentralgasheizung angeschlossen. 
Aus der Kaltmiete in Höhe von 1.039,25 € ergibt sich eine Kaution, drei Monatskaltmieten, in Höhe von 3.117,75 €. Die Zahlung der Kaution in drei Raten ist möglich. 

Sollten Sie Interesse an einer Besichtigung der o.g. Wohnung haben, sprechen Sie bitte telefonisch einen Besichtigungstermin mit einer unserer Mitarbeiterinnen ab.
Die notwendigen Bewerbungsunterlagen finden Sie auf unserer Website unter "Mieterservice". Bitte beachten Sie, dass diese Unterlagen vor oder zum Besichtigungstermin mitzubringen sind. 


Kontakt & Anschrift

KOWOBE 
Kommunaler Wohnungswirtschaftsbetrieb
der Stadt Fürstenberg/H. 
Markt 5 
16798 Fürstenberg/Havel 

Telefon: 033093 349-0 
Telefax: 033093 349-49 
E-Mail: info@kowobe-fuerstenberg.de


Mietersprechzeiten

Dienstag:
09:00 - 12:00 Uhr

Donnerstag:
14:00 - 17:30 Uhr

Einen Termin außerhalb der Sprechzeiten bitte vorher telefonisch vereinbaren.

© Stadt Fürstenberg/Havel - Impressum | Datenschutz